行業資訊
地下車庫設計規范
地庫基本概念
地下車庫——室內地坪面地于室外地坪面高度超過該層車庫凈高一半的汽車庫。(利用地下層空間做車庫,以坡道與地面相通)

1.全地下車庫
停車間室內地坪面低于室外地坪面高度超過該層車庫凈高一半的汽車庫。
2.半地下車庫
低于室外地坪面高度超過該層車庫凈高1/3的汽車庫,不超過1/2的汽車庫。
全地下車庫與半地下車庫對比表

3.車庫形式選擇要點
根據地形條件及甲方任務書要求進行選擇適當形式。
例如:山地多選擇半地下車庫,相對平坦地形多選擇全地下車庫。
①退界
地庫退界不小于地庫底板到頂板高度的0.7倍,國標不小于5米,滬標不小于3米。

滿足外圈綜合管線要求

4.總圖布置車庫要點
1)建筑間距



2)嚴禁建造地庫建筑范圍
汽車庫不應與托兒所幼兒園養老院組合建造。當病房樓與汽車庫有完全防火分隔時,病房樓的地下可設置汽車庫。

即使是幼兒園養老院的場地內(非建筑正投影下)也不允許設地庫
車位基本設計要求
1.車位規范要求
車位尺寸


垂直式停車

平行式停車

機械停車




垂直式后退停車

平行式前進停車

2.轉彎半徑


3.車庫埋深確定
1)非人防普通車庫
非人防普通車庫凈空高度不應小于2.2m.

梁板式
2)非人防機械車庫
機械停車位要求凈高3.6m

梁板
3)非人防普通車庫
非人防普通車庫凈空高度不應小于2.2m.

無梁樓蓋
4)人防車庫
要求凈高2.4m,結構板厚200mm以上

梁板
4.車庫覆土厚度
地下車庫頂板的覆土厚度一般確定方法:
①當地規范綠化率計算要求覆土厚度;
②給排水及其他工種走線要求;
③景觀綠化設計要求。
車庫出入口基本設計要求
1、出入口數量確定
大中型汽車庫的庫址,車輛出入口不應少于2個;特大型汽車庫庫址,車輛出入口不應少于3個,并應設置人流專用出入口。
國標
1.不少于兩個,但符合下列條件可設一個:
Ⅳ類汽車庫(<50)或停車少于100輛的地下車庫或坡道為雙車道的Ⅲ類地上車庫(51-150)
2.Ⅰ、Ⅱ類汽車庫和停車大于100的地下車庫,如果采用錯層或斜樓板,坡道是雙車道,那沒首層或負一層到室外的汽車疏散口不少于2個,其它樓層疏散坡道可以設1個。
3.特大型車庫汽車(>500)出入口數量不應少于3個。
滬標《建筑工程交通設計及停車庫場設置標準》
25輛一下,1個單車道或1個雙車道
25-99輛,2個單車道或1個雙車道
100-199輛,不少于2個單車道
200-699輛 2個雙車道(雙進雙出)
700輛及以上,3個雙車道
對于設三個車道的要求比國標要寬松
2、出入口寬度確定
出入口最小寬度:單車5.0m,雙車7.0m
3、出入口位置基本要求
1)汽車庫出入口凈距
機動車停車庫地上出入口之間的凈距不應小于15m
2)基地內配建的機動車停車庫(場)不應將其出入口直接設置在城市道路上,其出入口應設在基地內部道路上,并符合內部交通的需要。
3)機動車停車庫的出入口的坡道終點面向城市道路時,其與城市道路紅線的距離不應小于7.5m,平行城市道路或與城市道路斜交角度小于75度時應后退基地的出入口不小于5.0m

4)汽車庫出入口通視要求
汽車庫庫址的車輛出入口,距離城市道路的規劃紅線不應小于7.5m,并在距出入口邊線內2m處作視點的120°范圍內至邊線外7.5m以上不應有遮擋視線障礙物。

5)機動車庫地下出入口間距要求不應小于10m

上海規定:地下車庫出入口與住宅間距不小于8m

車庫坡道基本設計要求
滬標《建筑工程交通設計及停車庫場設置標準》
直線坡道的坡度最大可以做到 16%
國標《汽車庫建筑設計規范》
A 小型車的直線最大坡度 15%
B 中型車的直線最大坡度 12%
C 大型車的直線最大坡度 10%
坡度超多10%時,坡道上下端應設1/2坡度的緩坡 (直線緩坡 3.6米長,曲線緩坡 2.4米長)

汽車庫內當通車道縱向坡度大于10%時,坡道上、下端均應設緩坡。其直線緩坡段的水平長度不應小于3.6m,緩坡坡度應為坡道坡度的1/2。曲線緩坡段的水平長度不應小于2.4m,曲線的半徑不應小于20m,緩坡段的中點為坡道原起點或止點。

柱網布置基本要求
1、常見柱網形式
柱網布置
柱網:柱網按7800~8400x(2a+b)/2布置。以橫向停3輛車為例,垂直行車道方向柱(2a+b)/2,其中:a為停車位深度,b為行車道寬度。

8400x8400

8100x8100

極限尺寸

2、柱網選擇要點
1)單建式地庫,停放小型車時不宜采用兩柱間停一輛車的方式,避免柱子過多;而附建式地庫,有時因上部建筑柱網尺寸較小,兩柱間可能停放一輛車。
2)除滿足合理的技術要求和使用面積指標達到最優,還必須考慮結構上是否經濟合理(包括結構跨度尺寸不應過大、材料消耗量要小、結構構件尺寸合理、在平面和高度上不過多占用室內空間、柱距與一定得結構形式相適應、柱網單元不應過多)。
具體停車庫柱網與停車關系如下表:


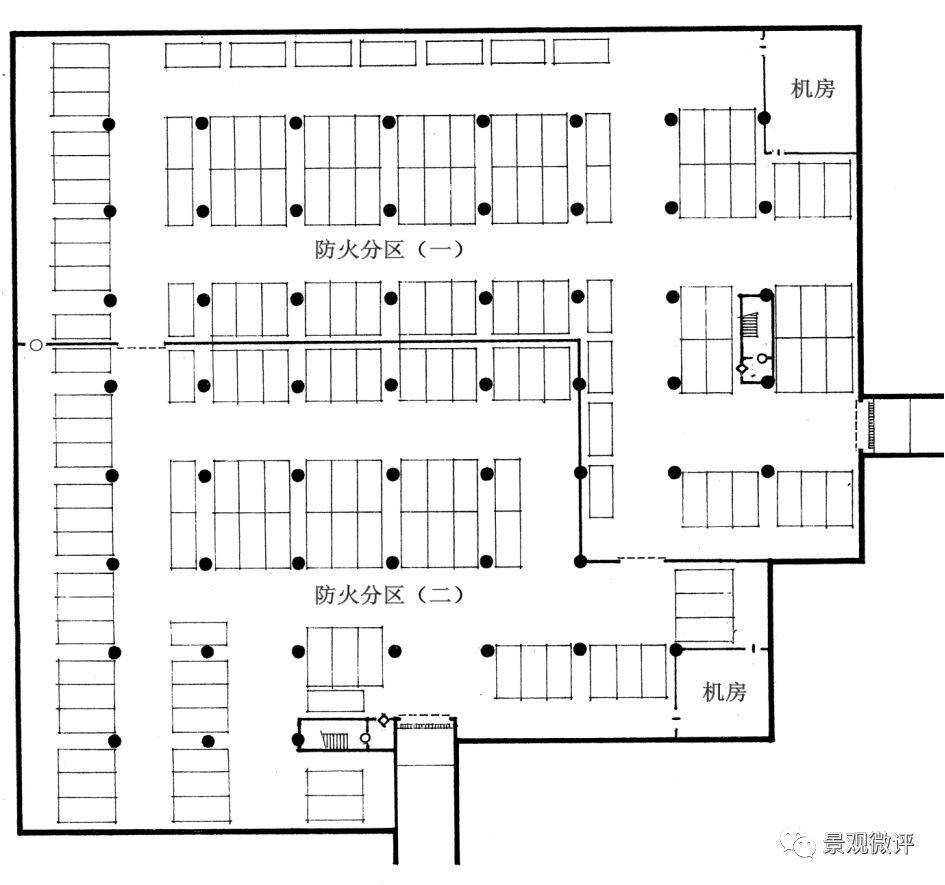
消防設計要求
1、防火分區
防火分區的面積劃定如下表所示:
車庫類型 | 防火分區面積 |
開敞式半地下汽車庫 | 5000 |
開敞式地下汽車庫 | 4000 |
半地下汽車庫 | 2500 |
地下汽車庫 | 2000 |
注:當汽車庫設有自動噴淋系統時,其面積可增加一倍。
2、疏散
汽車庫的人員安全出口和汽車疏散出口應分開設置。設在工業與民用建筑內的汽車庫,其車輛疏散出口應與其他部分的人員安全出口分開設置。
①汽車疏散出口
車道數量:汽車庫的汽車疏散出口不應少于兩個,但符合下列條件之一的可設一個: A、Ⅳ類汽車庫(50輛以下) B、汽車疏散坡道為雙車道,且停車數少于100輛的地下汽車庫。
車道寬度:汽車疏散坡道的寬度不應小于4m,雙車道不應小于7m。
②人員疏散要求
疏散口數量:汽車庫的每個防火分區內,其人員安全出口不應少于兩個,但符合下列條件之一的可設一個: A、同一時間的人數不超過25人;B、Ⅳ類汽車庫
疏散距離:
汽車庫室內最遠工作地點至樓梯間的距離不應超過45m,當設有自動滅火系統時,其距離不應超過60m。單層或設在建筑物首層的汽車庫,室內最遠工作地點至室外出口的距離不應超過60m。
汽車庫防火分區與相鄰防火分區,以防火卷簾分隔,本區內僅有一個人員安全出口,防火墻上未設置可供人員疏散的防火門。

示例
某工程地下大型車庫
①汽車庫內最遠點至樓梯間距離大于60m(兩樓梯間距離大于120m)。
②停車位阻擋人員安全出口。


常見地下設備用房
1.風機房的設置
每個防煙分區應有一個進風機房,一個排風機房。條件允許的情況下,同一個防火分區內的兩個防煙分區可以共用進風機房。
進排風機房最好呈對角布置,距離大于20米。否則氣流短路。
風機房面積約為防煙分區面積的1-1.5%按照經驗值30平米左右。
2.水泵房
水泵房的設置大小如下表:

生活水泵房和消防水泵房一般合建,如由于場地原因也可分開設置。當小區分期建設時,則有可能建一個以上的水泵房。分建與合建的基本原則是:當一、二期規劃已經確定,泵房合建;當二期建筑性質和高度等都無法確定時,泵房分開建。多層地下室,水泵房及水池宜都設置在地下室的底層。水泵房盡可能避免在住宅下設置(遠離塔樓),以減小噪音對住戶的影響。水泵房最好靠近配電間,靠近水專業主管井,可以減少管線的長度來減少設備成本。
3.變配電所和發電機房
一般將其設置在地下一層,江蘇要求還不能在最低一層,下部必須有其三倍面積的地下室。變配電所供電半徑宜在 250 米范圍內,且靠近大型用電負荷地方為好。不應設置在廁浴或其它經常積水場所的正下方或貼鄰(可設雙層板)。不宜設在地勢低洼和可能積水場所。若設在地下一層時,應采取抬高地面(100~300mm)等防水措施。若設在住宅地下室時,盡量與住戶之間相隔 1—2 層的距離,避免設備運行 低頻噪聲對住戶的影響。變配電所與發電機房應避開建筑物的伸縮縫。
大規模住宅小區一般按地上面積 7 萬平米設一個,如無錫魅力之城 C 塊,地上 49.1 萬平米設有 7 個變電所。江蘇新政策為提高供電的可靠性及效率要求約 2.5 萬平米設一個,如無錫金域藍灣地上 30 萬平米設有 12 個變電所。
設備用房布置時注意點:
設備擠占車位空間,地下室建造成本高達2000元/M2以上,行車兩邊是停車布置的黃金寶地,若這里被擠占,那么要想得到相同數量的車位,需用三倍的面積來實現,一般因設備用房擠占停車位、或設備用房過大都會造成成本極大浪費。


總圖設計應考慮的因素
1、場地的建筑布局、形式、道路走向、行車密度及行車方向。
2、是否有其他地下設施,如地下街、地鐵等。
3、周圍環境狀況,如綠化、道路寬度、高程、是草地還是山地。
4、工程與水文地質情況,如地下水位、是軟土還是硬土,若為巖石則對總圖設計影響很大。
5、出入口宜設在寬度大于6 m,縱坡小于10%的次干道上。
6、出入口宜距立交、地下綜合體、橋隧等有一定距離,距立交應大于80 m,距其他應大于50 m。
7、要考慮地面出入口一側有至少2輛車位置的候車長度。
8、停車場應有明顯的標志,并按規定設置標線。
9、單建式停車場要考慮車庫建成后地面部分的規劃,如綠地、廣場、公園等內容。
總圖設計
1、廣場式矩形平面
廣場式布局通常是地面環境為廣場,周圍是道路,即在廣場下設地下停車場。
廣場下停車場的總平面大多為矩形、近似矩形、梯形等。

2、道路式條形平面
道路式條形平面布局的地下停車場指停車場設置在城市道路下,基本按道路走向布局,出入口設在次要道路一側,此種平面基本為條形。

圖4-17為日本新瀉的道路下停車場實例,可存車300臺,2層,上層為商場。
3、不規則地段下的不規則平面
大多有特殊原因,主要是地段條件不規則或專業車庫的某些原因。這種不規則的地下停車場施工復雜、增加造價、平面不規整。
4、圓形平面
圓形平面的優點是可以建在廣場、公園及不規則地段下。通過環形道進出車,由于可建多層,所以存車量很大。
5、附建式與地面建筑平面相吻合平面
附建式停車場利用地下部分或全部空間,由于受地面建筑的平面柱網限制。
其平面主要特點是與地面建筑平面相吻合。
6、利用建筑地下室擴展的混合型平面
此種類型首先利用地面建筑地下室,在此基礎上由規模或柱網要求而外擴展的地下車庫,此平面類型既有附建部分,又有廣場的單建部分,可稱為混合型平面。
7、巖層中的通道連接式平面
如果為巖狀結構,其平面形式受施工影響將起到很大的變化。在這種地段條件下,地下停車場的平面形式常常由條形通道式拼接起來,可組成“T”型,樹狀或“井”型平面。

圖4-22為我國某省地下專用車庫,可存100臺中型客貨車,有防護能力,戰時為人員掩蔽所
地下停車場設計
一、 地下停車場的建筑組成與工藝流程
1、建筑組成
地下停車場建筑組成有以下幾個部分:
●出入口:進出車用的坡道、地面口部及口部防護、機械式口部的技術用房;
●停車庫:主要有停車間、行車通道、步行道等;
●服務部分:收費、加油、維修、充電等;
●管理部分:門衛、調度、辦公、廁所、防災中心等;
●輔助部分:風機房、水泵房、器材、油庫、消防水庫、防護用設備間等。
2、工藝流程
地下停車場的一般流程是:車由入口進入、洗車、收費、存車、加油、出庫、出口。

二、地下停車場主體平面設計
1、基本要求
●以停放一臺車平均需要的建筑面積作為衡量柱網是否合理的綜合指標
●適應一定的車型的停放方式、通道布局、并具有一定地靈活性
●保障一定的安全距離,避免遮擋和碰撞
●盡量作到充分利用面積
●施工方便,經濟,合理
●盡可能減少柱網尺寸,結構完整統一
2、面積估算
●關于地下車庫每臺車所需面積指標,是根據國內近年來建造的一些地下汽車庫有關資料統計得出的,該指標為參考指標。
表4.7 地下汽車庫的面積指標
指標內容 | 小型汽車庫 | 中型汽車庫 |
每停一臺車需要的建筑面積/m2 每停一臺車所需的停車部分面積/m2 停車部分面積占總面積比例/% | 35-45 28-38 75-85 | 65-75 55-65 80-90 |
●汽車庫建筑規模按汽車類型和容量分為四類,并應符合表4.8中的規定。
表4.8 汽車庫建筑分類
規模 | 特大型 | 大型 | 中型 | 小型 |
停車數/量 | 〉500 | 301 ~ 500 | 50 ~300 | 〈50 |
3、車位平面尺寸
●停車場設計取決于選定的基本車型,一般來說,服務車型不可能太多,因為各類車型尺寸相差很大,尺寸的差別會影響到車庫建筑面積和空間利用率,所以,必須選定一種基本車型來確定車庫的柱網,當然該型號在尺寸和性能上應具有一定的代表性。
●如日本將小轎車分為特大型、大型、中型、小型、輕型5種車型,汽車庫主要滿足日本大量生產的中型轎車需要,因此確定以日本生產的中型轎車的控制尺寸作為設計車型的外廓尺寸,即:長4.7 m,寬1.7 m,高2.0 m,最小轉彎半徑6.5 m。

●我國的車庫設計也必須根據所存車型來確定參數。一般中小型車(4.80 m×1.80 m×2.00 m)及貨車(7.00 m×2.50 m×2.60 m)可作為地下停車場的設計依據。
如果實際存車同上述尺寸存在著差異,則必須按實際車型進行設計。
●不僅如此,僅滿足車輛尺寸要求并不能停車,還必須滿足車輛周圍有一定的安全距離,以保證停車狀態下能打開車門和便于車輛進出。
表 4.10 車輛停放時與周圍物體的安全距離

單間停放:指一臺車周圍有墻或車的情況
開敞停放:指一臺車周圍有柱的情況

4、停放角度與停駛方式
●車輛存放角度是指停車時汽車的軸線與車庫縱軸線之間的夾角。一般有0°、30°、60 °、45°、90°等。

●汽車停駛方式是指存車所采用的駕駛措施。
●有前進停放,前進出車;前進停放,后退出車;后退停車,前進出車三種駕駛方式(圖4-27)。

研究表明,汽車停放角度與停車占用面積之間有一定的關系
● 0°存車時駕駛方便但所需面積最大,所以該角度適合狹長而跨度小的停車場。
● 90°直角停放時可以從兩個方向進出車,所用面積指標最小,但需要較寬的行車通道,適用于大面積多跨的停車間。
5、主體行車通道寬度
行車通道寬度取決于汽車車型、停放角度和停駛方式。
應根據所采取的車型的轉彎半徑等有關參數,用計算法或幾何做圖法求出在某種停車方式時所需的行車通道最小寬度,再結合柱網布置,適當調整后確定合理的尺寸,一般不小于3 m。
三、平面柱網
平面柱網由柱距和跨度組成。決定柱距尺寸的因素有如下幾個方面:
(1) 停放角度及停駛方式,一個柱距內停放車輛臺數;
(2) 車輛停放所必須的安全距離及防火間距;
(3) 通道數及寬度
(4) 結構形式及柱斷面尺寸;
(5) 柱距和跨度應符合國家頒布的建筑模數。
實踐表明,柱間距、車位及通道跨度三者之間有一定的關系,并影響停車面積。
其主要關系是:
當加大柱距時,柱對出車的阻擋作用開始減小,通道跨度尺寸隨之減小,但加大到一定程度后,柱不再成為出車的障礙,這時通道跨度尺寸主要受兩側停車外端點的控制;
當柱距固定,調整車位跨度尺寸時,通道跨度尺寸隨之變化,車位跨度尺寸越小,所需行車道寬度越小,超過車后軸位置后,柱子不再成為出車的障礙,如柱子外移,超過車位前端線后,通道跨度尺寸需要加大。


可以看出,經濟合理的柱距為5.3 m,車位跨為4.0 m時為最佳尺寸,這時通道跨相應為5.4 m,柱網單元為(4.0+5.4) m×5.3 m。

如按我國小型車和中型車的車型,當地下停車場柱距間停放1臺、2臺和3臺汽車時所需的最小柱距為(3.0 m、3.9 m)、(5.3 m、7.0 m)、(7.6 m、8.5 )
實踐表明,目前地下停車場有向大柱距發展的趨勢
前述停車均為直角停車的柱網布置。不同停車角度,所需停車面積也有區別,見表4.11所示。
表4.11 不同停車角度所需停車面積
四、結構形式
地下停車場結構形式主要有兩種:矩形結構、拱形結構。
1、矩形結構
矩形結構又分為梁板結構、無梁樓蓋、幕式樓蓋
側墻通常為鋼筋混凝土墻,大多為淺埋,適合地下連續墻、大開挖建筑等施工方法。

2、拱形結構
拱形結構有單跨、多跨、幕式及拋物線拱、頂制拱板等多種類型
其特點是占用空間大、節省材料、受力好、施工開挖土方量大,有些適合深埋,相對來說,不如矩形結構采用的廣泛。

五、坡道與通道的設計
坡道設計
1、坡道設計原則
(1) 坡道設計要同出入口和主體有順暢的連接,同地段環境相吻合,滿足車輛進出方便、安全。
(2) 要有一定的坡度,且有防滑要求,對于回轉坡道有轉彎半徑的要求。
(3) 有防護要求的車庫,坡道應設在防護區以內,并保證有足夠的堅固程度。
(4) 在保證使用要求的前提下應使坡道面積盡量緊湊。
2、坡道類型
坡道類型較多,基本類型有兩種:
一種是直線形坡道,另一種是曲線形坡道。
直線形坡道視線好、上下方便、切口規整、施工簡便,但占地面積大,常布置在主體建筑以外,圖4-36(a)、(b)、(c)所示。
曲線形坡道占地面積小,適用于狹窄地段,視線效果差,進出不太方便,圖4-36(d)、(e)

3、坡道與主體交通流線
坡道與主體交通流線順暢、方便、安全,是存車的重要設計要求,坡道和主體內的交通形成完整的流線。
坡道與主體內交通布置應順暢,方向單一,流線清楚,出入口明顯。
流線在主體內時應同主體平面相吻合。
圖4-38為坡道與主體之間的相互關系,

4. 坡道技術標準
(1) 數量:
表 4.12 汽車庫容量與坡道面積的關系
表4.12為汽車庫容量與坡道面積的關系,由表看出,當容量為10臺時,比值占49.7%,而當容量為100臺時,比值下降到11.9%,變化值較大。
(2)坡道寬度
小轎車爬坡能力為18°~24°,中型貨車為22°~28°。
英、美、法和前蘇聯各為10%、10%、14%和16%。實際上日本常用12%~15%,德國為10%~15%。根據我國實際情況,地下汽車庫坡道縱向坡度建議值為10%~15%,見表4.13。
表 4.13 地下汽車庫坡道縱向坡度
(3)坡道長度、寬度、高度
坡道長度取決于坡度(圖4-39),計算面積可按水平投影乘以cosα。

表4.14為坡道升降高度3.5~7.0 m,坡度為10%~15%條件下的直線坡道各段長度。表4.16為不同長度、寬度、坡度的直線坡道使用面積比較值。


坡道橫向也應設坡度,以便于排水,該坡度值為:直線段1%~2%,曲線段為2%~6%
曲線段坡度是橫向超高,也可用公式(4-5)計算,即公式中:
ic——橫向坡度;
v——設計車速(km/h);
R——彎道平曲線半徑(m);
μ—橫向力系數(0.1~0.15)
如果利用式(4-5)計算停車場曲線道路最大超高值可見表4-18所示。
表 4.18 圓曲線半徑
在曲線段,汽車行駛道路的寬度要比直線段大,因此,曲線段必須加寬。
按公路建設標準規定,當曲線半徑等于或小于250 m時,應在曲線的內側加寬,且加寬值不變,地下停車場通道設計應按城市道路曲線加寬取值。
加寬值由直線段開始,逐漸按比例增加到圓曲線起點的全加寬值,在圓曲線加寬值不變。
5、通道設計
汽車通道設計主要考慮汽車回轉軌跡,平曲線及緩和曲線,橫向超高和加寬。
回轉軌跡表明當汽車回轉狀態下的環道內外半徑不同,則最小道寬尺寸也將不同。
平曲線是指通道中非直線段的曲線段部分。在直線與曲線段相接處為緩和曲線,由于地下停車場汽車進入時行駛速度較低(小于40 km/h),緩和曲線可用直線代替,直線緩和段一端與圓曲線相切,另一端與直線相接處予以圓順,不設緩和曲線的臨界半徑R=0.144v2,v為汽車行駛速度。
更多相關信息 還可關注中鐵城際公眾號矩陣 掃一掃下方二維碼即可關注

文章推薦
- 直播預告|2026最新資金政策趨勢, 錢在哪、怎么拿?
- 直播預告|2026最新資金政策趨勢, 錢在哪、怎么拿?
- 在“自審自發”試點機制下,省級政府與市縣在專項債項目審核、發行中的職責邊界如何劃分?
- 專項債券項目為何要強調“項目—資產—現金流”的全生命周期管理?這對防范隱性債務有何作用?
- 如何理解專項債券必須遵循“融資規模與項目收益相平衡”的原則?在制度設計上是如何防止“以債養債”的?
- 專項債項目收益測算不實、虛增收入會帶來哪些風險?
- 專項債資金被擠占、挪用或改變用途的典型表現有哪些,如何防范?
- 專項債資金撥付和使用進度慢、資金閑置的主要原因有哪些?
- “一案兩書”編制機構無經驗有何影響?
- 項目建議書與可研投資估算差異過大會怎樣?




